Конструкция и компоновка элементов установки
В отличие от классических твердотопливных установок устройство пиролизных котлов длительного горения предусматривает две камеры сгорания вместо традиционной топки. В первой камере осуществляется медленное горение за счет недостаточного количества воздуха. При этом топливо начинает выделять так называемый пиролизный газ, перетекающий во вторичную камеру вместе с продуктами сгорания. Туда же подается достаточное количество воздуха, вследствие чего газ воспламеняется и сгорает, нагревая водяную рубашку агрегата.
Расположение двух камер может быть различным, поскольку отопительные котлы пиролизного типа могут работать как на естественной тяге дымохода, так и с помощью принудительной подачи воздуха вентилятором. В установках, использующих естественную тягу, вторичная камера расположена над первичной и воздух проходит через топливо снизу вверх. При искусственно создаваемой тяге главная топка, наоборот, находится над камерой дожига и поток воздуха направлен сверху вниз. Это отражают представленные ниже схемы устройства пиролизных котлов с различной компоновкой камер.
Подробный разбор схемы
Согласно представленной выше схеме, наш пиролизный котел, собираемый своими руками, будет состоять из следующих частей:

Не считая вентилятора, подобный контроллер – единственная электронная вещь во всем агрегате. Экономить на ней категорически не рекомендуется.
- Электронный контроллер, управляющий вентилятором для котла;
- Дверца для загрузки дров (можно сделать самому или приобрести готовую);
- Дверца зольника;
- Дутьевой вентилятор (приобретается в магазине, создает тягу и вытягивает продукты пиролиза в камеру дожигания).
Из элементов управления – непосредственно контроллер и ручки для открывания/закрывания дверок.
Топливо для пиролизных котлов
Древесина обладает наилучшей способностью образовывать газообразные горючие смеси в процессе пиролиза
Из всех видов топлива для пиролизного процесса лучше подходят дрова и различные древесные отходы. Кроме этого, в пиролизных котлах для отопления частного дома можно сжигать также уголь или торф, но эффективность будет несколько меньше.
Толщина поленьев не имеет большого значения, а их длина ограничивается только габаритами топочной камеры. Главное условие — чтобы среди них не попадалась гниль и труха. Если кроме дров использовать для сжигания опилки и стружку, их объем не должен превышать 1/3 часть от общей загрузки топлива.
Принцип работы пиролизных котлов и их особенности
Создавая пиролизные котлы своими руками, люди стремятся сэкономить денежные средства в своем кошельке. Если газовое оборудование стоит довольно дешево, то твердотопливные агрегаты просто поражают своей ценой. Более-менее приличная модель мощностью 10 кВт обойдется в 50-60 тысяч рублей – дешевле провести газ, если рядом проходила бы газовая магистрально. Но если ее нет, то выходов два – приобретать заводское оборудование или делать его самостоятельно.
Изготовить пиролизный котел длительного горения своими руками можно, но сложно. Давайте для начала разберемся, для чего вообще нужен пиролиз. В обычных котлах и печах дрова сгорают традиционным способом – при высокой температуре, с выбросом продуктов сгорания в атмосферу. Температура в камере сгорания составляет порядка +800-1100 градусов, а в дымоходе – до +150-200 градусов. Таким образом, солидная часть тепла просто улетает наружу.
Прямое сгорание дров применяется во многих отопительных агрегатах:

Твердотопливные пиролизные котлы могут использовать несколько видов топлива, в том числе отходы деревообрабатывающего производства и сельскохозяйственной переработки.
- Твердотопливные котлы;
- Печи-камины;
- Камины с водяными контурами.
Главным преимуществом данной методики является то, что она отличается простотой – достаточно создать камеру сгорания и организовать отвод продуктов сгорания за пределы оборудования. Единственным регулятором здесь становится дверка поддувала – регулируя просвет, мы можем отрегулировать интенсивность горения, тем самым воздействуя на температуру.
В пиролизном котле, собранном своими руками или купленном в магазине, процесс сгорания топлива идет несколько по-другому. Дрова здесь сгорают при низкой температуре. Можно сказать, что это даже не горение, а медленное тление. Древесина при этом превращается в подобие кокса, одновременно выделяя горючие пиролизные газы. Эти газы отправляются в камеру дожигания, где сгорают с выделением большого количества тепла.
Если вам кажется, что данная реакция не даст особого эффекта, то вы глубоко заблуждаетесь – если заглянуть в камеру дожигания, то здесь будет видно ревущее пламя ярко-желтого, почти белого, цвета. Температура сгорания – чуть выше +1000 градусов, а тепла в этом процессе выделяется больше, чем при стандартном горении древесины.
Для того собранный своими руками пиролизный котел смог показать максимальную эффективность, необходимы дрова с низким содержанием влаги. Влажная древесина не даст оборудованию выйти на полную мощность.
Реакция пиролиза знакома нам еще со школьного курса физики. В учебнике (а может и в лабораторном кабинете) многие из нас видели интересную реакцию – древесина помещалась в стеклянную запечатанную колбу с трубкой, после чего колба нагревалась над горелкой. Через несколько минут древесина начинала темнеть, а из трубки начинали выходить продукты пиролиза – это горючие газы, которые можно было поджечь и понаблюдать за желто-оранжевым пламенем.
Аналогичным образом работает и пиролизный котел, собранный своими руками:

На одной загрузке топлива пиролизные котлы работают около 4-6 часов. Так что большим и стабильно пополняемым запасом дров стоит озаботиться заранее.
- В топке разжигаются дрова до появления устойчивого пламени;
- После этого доступ кислорода перекрывается, пламя гаснет почти полностью;
- Запускается дутьевой вентилятор – в камере дожигания появляется высокотемпературное пламя.
Устройство пиролизного котла довольно простое. Основными элементами здесь являются: камера сгорания, в которой складированы дрова, и камера дожигания, в которой сгорают продукты пиролиза. Передача тепла в отопительную систему осуществляется через теплообменник
В схеме пиролизного котла ему уделяется особое внимание
Все дело в том, что теплообменники в пиролизных котлах, собранных своими руками, устроены не так, как в газовом оборудовании. Продукты сгорания с воздухом проходят здесь через множество металлических труб, омываемых водой. Для увеличения эффективности котловая вода омывает не только сам теплообменник, но и все другие узлы – здесь создается своего рода водяная рубашка, которая отбирает излишки тепла от раскаленных элементов котельного агрегата.
Подробный разбор схемы
Согласно представленной выше схеме, наш пиролизный котел, собираемый своими руками, будет состоять из следующих частей:

Не считая вентилятора, подобный контроллер – единственная электронная вещь во всем агрегате. Экономить на ней категорически не рекомендуется.
- Электронный контроллер, управляющий вентилятором для котла;
- Дверца для загрузки дров (можно сделать самому или приобрести готовую);
- Дверца зольника;
- Дутьевой вентилятор (приобретается в магазине, создает тягу и вытягивает продукты пиролиза в камеру дожигания).
Из элементов управления – непосредственно контроллер и ручки для открывания/закрывания дверок.
Как сделать пиролизный котёл своими руками
Технологический процесс изготовления котла пиролизного принципа действия включает выполнение слесарных и сварочных работ.
Необходимые материалы и инструмент
Для изготовления качественного агрегата необходим опыт в работе со следующими инструментами:
- аппарат электросварочный;
- дрель электрическая;
- угловая шлифмашина;
- набор слесарных инструментов — угольник, уровень.
Потребуются материалы и комплектующие:
- металл: листовой, толщина 4 мм, 7,5 м²;
- труба — 8 м (диаметр 57 мм, толщина стенки 3,5 мм);
полоса сталь (толщина 4 мм, ширина 20 мм) — 7,5 мп;
полоса сталь (толщина 4 мм, ширина 30 мм) — 1,5 мп;
полоса сталь (толщина 5 мм, ширина 80 мм) — 1 мп;
шамотный (огнеупорный) кирпич — 15 шт;
профтруба 60×30 (толщина стенки 2 мм) — 1,5 мп;
профтруба 80×40 (толщина стенки 2 мм) — 1 мп;
круг отрезной d 230 — 10 шт.;
круг шлифовальный d 125 — 5 шт.;
электроды — 5 пачек;
датчик температуры.

Им автоматически выполняются манипуляции с заслонкой: открытие (для увеличения температуры горения) и закрытие (при достижении температурой максимального значения) Температурный датчик — это механическое устройство контроля количества воздуха, проходящего в камеру сгорания.
Продуктивность работы котла зависит от функционирования дымоотводящей трубы. Для обеспечения хорошей тяги дымоотвод должен соответствовать требованиям качества:
- высота не меньше 5 метров;
- хорошее утепление;
- отсутствие резких изгибов;
- отвод конденсата;
- простой доступ для чистки.
Чертежи и схемы устройства
Пиролизный котёл без принудительной вентиляции имеет наиболее простую схему. Энергонезависимость конструкции удешевляет эксплуатацию агрегата.
Схема пиролизного котла с естественным дымоотводом имеет вид:

Для повышения высокого КПД некоторые конструкции имеют двойные стенки основания
Котёл состоит из трёх основных камер:
- загрузочная, служащая для заброса топлива;
- камера дожига, куда подаётся вторичный воздух;
- теплообменник, выходящий в трубу.
Горение сырья направляет поток газа сверху вниз. При подаче воздуха под колосники в массив шамотного кирпича происходит дожиг горючих газов. Продукты распада уходят через теплообменник в дымоотвод. Регулировка тяги выполняется термодатчиком на выходе из котла с помощью цепочки, связанной с заслонкой подачи вторичного воздуха.
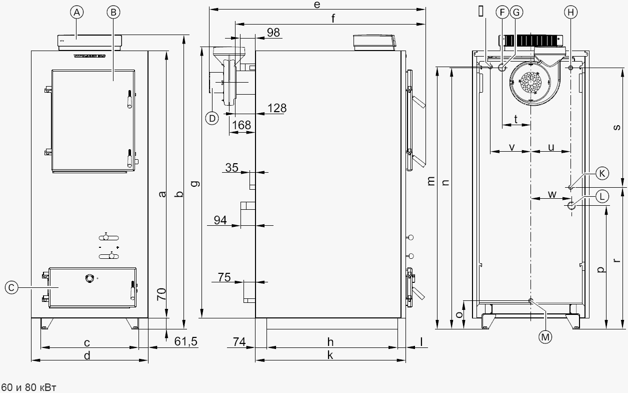
Подробную деталировку с размерами и допусками можно взять в стандартном чертеже:

A — контроллер контура котла; B — дверца загрузки; C — крышка зольника; D — дымоотвод; E — муфта для датчика температурного предохранителя; F — патрубок предохранительного клапана; G — подающая магистраль контура; H — подвод холодной воды в теплообменник; L — обратная магистраль контура котла; M — расширительный бак
Пошаговая инструкция изготовления агрегата
Изготовления пиролизного котла своими руками разделяется на этапы:
- Согласно чертежу выполняется разметка и нарезка деталей для корпуса. После «прихватывания» элементов производится контрольный замер, затем делаются сварочные швы. Установленные на свои места задняя панель и боковые стенки свариваются с двух сторон, зачищаются, обрабатываются сварочным герметиком.
- Производится монтаж труб теплообменника.
- После наваривания внешней стенки и обечаек дверок устанавливается механический регулятор контроля теплоносителя.
- Дымоход собирается наращиванием трубы Последующую часть нужно вставлять внутрь предыдущей, чтобы конденсат не попадал на внешнюю сторону. Готовая конструкция окрашивается огнеупорной краской.
Материал изготовления
Пиролизные котлы характеризуются повышенной температурой рабочей зоны. В камере газификации горения не происходит, однако обратный поток тепла способен разогревать стенки до 500–600 °С. Наибольшему температурному воздействию подвергается низ газогенераторного отсека — именно эта часть контактирует с воспламеняющимися газами и испытывает серьёзную термическую нагрузку. Рекомендуется низ камеры закладки выполнять в виде чугунного колосника или специального огнеупорного изделия с тонкой прорезью либо рядом небольших отверстий.
Основная трудность в самостоятельном изготовлении котловой техники заключается в выборе подходящей марки стали, которая поддаётся обработке в домашних условиях без специального оборудования. Наиболее пригодными в этом плане считаются стали аустенитного и аустенито-ферритного класса с умеренным содержанием хрома и никеля. Примерами марок таких сталей можно назвать 12Х18Н9Т, 08Х22Н6Т или AISI 304.

Технология сварки таких металлов признаётся умеренно сложной, но воспроизводимой в кустарных условиях с применением дуговой сварки покрытыми электродами без защитной среды. Основным фактором, ухудшающим качество сварной конструкции, считается образование горячих и холодных трещин, обусловленное высокой разницей температур на относительно малом линейном участке металлического изделия.
Для устранения негативных факторов термического воздействия используют следующие технологические приёмы:
Нарезка деталей с плавной подачей режущего инструмента, чем исключается перегрев кромок.
Ограничение плотности сварочного тока на 20–25% по сравнению с конструкционной сталью, сварка в мягких режимах.
Ограничение температуры сварочной ванны, выполнение многопроходного шва с высокой скоростью без боковых колебаний.
Правильная разделка соединяемых кромок согласно ГОСТ 5264 и их зачистка металлической щёткой.
Подкладка под изнанку шва металлического теплоотвода, поковка шва в процессе остывания.

И, конечно же, следует сделать правильный выбор содержания легирующих добавок в стержне электрода, чтобы обеспечить содержание феррита в структуре шва порядка 5–8%. К использованию рекомендованы электроды марок ЦТ-15 и ЦТ-16, а также специальные электроды 6816 MoLC или ROST 1913.
После сваривания конструкций рекомендуется их первичный отжиг при температуре не менее 700 °С в течение 2,5–3 часов. Достаточно загрузить внутренность сваренного корпуса каменным углём и разжечь горючее, обеспечив слабый принудительный поддув. Перед проведением отжига желательно протравить сварочные швы специальной пастой, соответствующей используемой марке стали.
Розжиг печи «бубафоня»
Для начала, сними с баллона крышки, вытащим из печки поршень-пресс с воздуховодом. Наложим внутрь печки сухих дров. Порода дров — любая. Дрова именно кладем горизонтально, друг к другу как можно ближе. Если мы дрова поставим вертикально, то получим неприятный сюрприз.
Сюрприз будет следующий. Не сгоревшее вертикально стоящее полено, не даст возможности поршню опускаться на низ. Если так произойдет, в нижней камере будет полноценный костер. Топливо быстро сгорит. Режим работы печки будет вместо тления, горение. Про дым из воздуховода я вообще молчу, он обязательно появиться. Дрова не нужно укладывать выше уровня отверстия дымохода.
Далее необходимо прижать поршнем дрова и надеть на поршень крышку бубафони.

Как правильно поджечь дрова? Просто кинуть горящую спичку не получится. Она обязательно потухнет еще не достигнув дров. Мы поступим просто. Возьмем бумагу, ветошь или кусок бересты. Зажжем и бросим в печку.

Нужно подождать 20 минут, чтобы наша закладка хорошо разгорелась. Затем на воздуховоде прикроем задвижку. Воздух начнет поступать в печку в меньшем количестве. В первичной камере с дровами, дрова перестанут гореть, начнут тлеть. Пойдет выделение пиролизных газов. А газ нам необходим. Ведь установка — пиролизная! Так наша супер печка выйдет на свой рабочий режим.
Как избежать проблем при строительстве и эксплуатации
Оборудование устанавливают только на бетонное основание. Стальной прокат не выдерживает вес и котел проседает. Это приводит к потере плотности соединений и повреждению труб.
Использовать самодельную дверь для топки и зольника не рекомендуют. Малейшие неровности снижают эффективность сжигания дров.
Кроме того, возможно выпадение углей через щели с последующим возгоранием. При самостоятельном изготовлении дверцы ее делают строго под отверстие, обеспечивают заслонками и теплоизоляцией между слоями.
Если котел с теплообменником используют в локальной отопительной сети, циркуляционный насос устанавливают на обратку. Так устройство работает в щадящем режиме на протяжении 6 или более лет. Для решения проблемы низкотемпературной коррозии на байпасе (перемычке) устанавливают трехходовой термостатический клапан и настраивают на 55 градусов.
Стойкий запах креозота и задымление в котельной говорят о низком качестве топлива. Дешевые деревянные шпалы не подходят для обогрева и образуют зольно-угольные остатки на стенках менее, чем за сутки горения. Чтобы исключить теплопотери через дымоход, последний оборудуют заслонкой. Она предотвращает выход нагретого воздуха, снижает скорость сжигания топлива.
Делаем агрегат верхнего горения
Как уже говорилось выше, подобные котлы проще всего изготавливать из пропановых баллонов емкостью 50 литров. Для этого из резервуара нужно выкрутить вентиль и заполнить его водой, а потом отрезать верхнюю часть болгаркой по заводскому шву. Дальше надо сварить такие элементы:
- колосниковую решетку из арматуры, как это сделано на фото;
- трубу с дисковым грузом и распределителями воздушного потока;
- загрузочную и зольную дверцу с ручками;
- согните из листового металла обшивку водяной рубашки.
Сборка теплогенератора производится согласно представленному чертежу. Сначала устанавливаются колосники, потом – труба с грузом и верхняя крышка. После чего приваривается дымоход и устраивается водяная рубашка с наружным утеплением. Больше подробностей показано в следующем видео:
Техника безопасности
При установке самодельного котла соблюдаем следующие важные правила:
- для установки отопительного агрегата нужно выделить отдельную котельную;
- в котельной нужно оборудовать эффективную вентиляционную систему. Минимальная площадь воздуховодного отверстия – 100 см2;
- расстояние между агрегатом и любыми другими поверхностями и предметами должно быть больше 20 см;
- перед топкой котла укладываем на пол стальной лист толщиной не менее 3 мм;
- котел устанавливаем на предварительно обустроенное кирпичное либо бетонное основание;
- дымоотводящую трубу нужно качественно утеплить. Без теплоизоляции процессы образования конденсата, копоти и прочих неприятностей будут более интенсивными. Это отрицательно скажется на эффективности оборудования и сроке его службы.
В завершение выполняется проверка КПД котла. Для этого достаточно сделать тестовую загрузку топлива. Если выходящий дым не будет иметь угарного запаха, значит с КПД котла все в порядке и его можно использовать для обогрева дома безо всяких опасений.
Как сделать своими руками
Чтобы сконструировать пиролизный котёл своими руками прежде всего нужно сделать необходимые расчёты и затем на их основании чертёж.
Чертёж можно заказать и у специальной фирмы, которая занимается разработкой чертежей. Даже в этом случае пиролизный котёл обойдется, так примерно, долларов на 2 000 меньше, чем купить.
Если есть навыки и уверенность в своих силах можно попробовать сделать его самостоятельно.
Скачав чертежи здесь https://yadi.sk/d/ch0OqRygmWRR3. Их необходимо изучить и доработать под свои условия. Размеры камеры для розжига изменять нежелательно. Это чертежи котла мощностью 20 кВт. (Они разработаны сайтом http://cdelayremont.ru/piroliznye-kotly).
В соответствии с разработанными чертежами, есть возможность рассчитать необходимое количество материала для агрегата. И вполне реально сконструировать пиролизный котёл в собственном гараже.
Для работы понадобятся следующие инструменты:
- электрическая дрель;
- сварочный аппарат (желательно модель постоянного тока);
- желателен плазморез или электролобзик;
- несколько упаковок (около 5 шт) электродов;
- болгарка;
- несколько шлифовальных кругов на 125 мм;
- отрезные круги на 230 мм.
Из материалов:
- Металлические листы не меньше 5 мм толщиной, а также на 3 мм. Помните, что дешёвая сталь быстро прогорит, так как температура пиролиза не ниже 1100С. Ремонт будет сложным и дорогостоящим, а иногда и невозможным. Здесь нужна качественная сталь не меньше 5 мм. Для внешнего кожуха подойдет и 3 мм.
- Набор труб различного диаметра, их количество должно быть рассчитано, согласно чертежам.
- Набор профтруб 2 мм.
- Несколько полос стали разной ширины и толщины.
- Вентилятор.
- Термодатчик.
Принцип действия печи
Особенность пиролизной печи – две последовательно расположенные камеры сжигания. В первой камере, в которую закладываются дрова и другое твердое топливо, происходит медленное тление при недостатке кислорода, вследствие чего образуются две составляющие: кокс или уголь и пиролизный газ, давший название самой печке.
Пиролизный газ под воздействием естественной или принудительной тяги попадает во вторую камеру, туда же нагнетается воздух. Смесь дровяного газа с кислородом горит с высокой теплоотдачей, что значительно повышает КПД печи. Угарный газ СО, содержащийся в дыме, полностью окисляется до СО2, тем самым значительно снижая вредные выбросы в атмосферу. Оставшийся в первой камере уголь или кокс также догорают, постепенно отдавая тепло через внешние стенки печи. Совокупность всех этих процессов позволяет получить крайне высокую теплоотдачу и КПД пиролизной печи до 95%, что близко к газовым и электрическим котлам.
Схема пиролизной печи
Важным условием эффективной работы пиролизной печи является влажность топлива. При сжигании сырой древесины древесный газ смешивается с паром и уходит в виде дыма, горения газа во второй камере не происходит. КПД печи снижается, и получается обычная буржуйка. Не менее 3/4 от всего объема топлива должны составлять сухие дрова или пеллеты с влажностью не более 15%. Влажность дров можно определить по звуку: сухие поленья издают при постукивании звонкий и чистый звук.Пеллеты продаются высушенными, их влажность не превышает 10%.
К сухой древесине можно добавить любой сгораемый мусор или отходы, а также древесные остатки, ветки, опил. Благодаря полному сгоранию топлива дым от пиролизной печи практически бесцветный, не имеет резкого запаха и не загрязняет атмосферу.
Плюсы и минусы пиролизного котла изготовленного собственноручно

Перед тем как перейти к созданию пиролизного отопительного аппарата, нужно в обязательном порядке изучить все недостатки и достоинства данного вида конструкции. Совершенно глупым было бы сказать, что самодельные котлы плохие, но к огромному сожалению они очень далеко до идеала. Если средств приобрести готовый котел нет, то самодельный котел — это прекрасный выход из ситуации. Можно сделать вывод, что котел созданный самостоятельно, имеет полное право на существование. И так, перейдем к достоинствам:
Первое и главное достоинство — это низкая цена, ведь для изготовления конструкции вам понадобится лишь трубы и металл, а инструменты скорее всего вы найдете дома.
В случае если у вас есть доступ к бесплатному металлу, то пиролизный котел вам обойдется практически бесплатно, потому как придется оплатить лишь сварочный материал и диски для болгарки.
Ну и так же большая экономия на твердом топливе, в случае если конструкция собрана правильно. Ведь такой вид отопления дает большое количество тепла, при этом древесина превращается в кокс, золу и газовые вещества.
Большим преимуществом так же есть и то, что в таком котле вы можете отрегулировать интенсивность сгорания, именно для этого нужно будет купить регулирующую электронику.
Так же данный вид отапливания хорош тем, что эффективно обогревает дома с огромной площадью. Котел с 30 кВт мощностью способен прогреть дом до 280 квадратных метров.
Помимо плюсов у пиролизного котла так же есть и минусы.
Первое — это чистка котла от продуктов сгорания древесины. Данный процесс не столь трудоемкий, но нуждается в постоянном контроле.
Вторым минусом является то что КПД у самодельных котлов значительно ниже заводских. Но если выполнить все инструкции правильно, то котел получится достаточно эффективным.
Третьим по счету минусом является — сложность при расчетах. Грубой ошибкой является то, что большинство людей создают котлы используя личные схемы. Использовать личные схемы можно лишь в том случае если вы имеете особые знания, которые к сожалению осваивают далеко не все.
Габариты конструкции. Для того чтобы отопить большой дом, потребуется котел мощность в 30 кВт, а такая конструкция занимает очень много места.
Для того чтобы установить данную конструкцию желательно иметь дополнительное помещение, так как агрегат достаточно массивный. Если помещения нет, то можно установить котел в подвальном помещении.
Недостатки не столь катастрофичны, поэтому с ними с легкостью можно смириться.
Самым большим минусом остается только внешний вид конструкции пиролизного котла. Именно поэтому советует быть максимально аккуратными, чтобы не усугубить положение. Если все таки аппарат получился слишком страшным, то вы можете окрасить его краской.
Сложности при сборке котла
При постройке пиролизного котла основная сложность — выбор правильного проекта и материалов. Без понимания процессов, которые протекают в топках, правильно построить котёл невозможно.
Основные ошибки, которые допускают при самостоятельном проектировании:
- Недостаточная футеровка зон сгорания. Шамотный кирпич важен, так как поддерживает постоянную температуру в зоне горения и предохраняет колосник и стенки топки от прогорания.
- Излишний теплосъем. Теплообменник должен улавливать то тепло, которое не нужно для поддержания внутренних процессов в котле. Расположение водяной рубашки рядом с зоной горения недопустимо.
- Несоответствие размеров загрузочной камеры и камеры газификации. Слишком малая камера газификации может привести к зависанию крупных поленьев.
- Неправильный размер или направление воздушных сопел. Смешивание воздуха и пиролизных газов должно быть максимально равномерным.
- Некачественно сделанная регулировка потоков первичного и вторичного воздуха, отсутствие принудительной подачи кислорода. Обязательно ставить либо дымосос или дутьевой вентилятор с регулировкой мощности.
Заключение
Любые пиролизные котлы оснащаются дополнительным оборудованием. Наличие приборов контроля обязательно: манометр, аварийный клапан. При желании устанавливают воздушный насос для принудительной подачи кислорода. В аппаратах с нижней камерой сгорания газа он необязателен – используется естественная тяга.
Применение дымососа ограничивается стоимостью. Электродвигатель работает в условиях высокой температуры, поэтому применяется особая защищенная конструкция. Обычный не подойдет, отсюда соответствующая цена. Теплообменник может быть как водяным, так и воздушным. Его объем рассчитывают исходя из площади обогреваемого помещения.





































