Подробная инструкция по установке раковины тюльпан
Подключение раковины к системам водоснабжения и канализации осуществляют стандартными способами.
Намечаем место крепления раковины
Несмотря на то что чаша опирается на постамент, ее необходимо дополнительно прикрепить к стене. Перед выполнением разметки производят пробную установку изделия. Подставка не должна шататься. После выравнивания пьедестала на стене и полу отмечают места расположения всех частей. Правильному нанесению линий помогает использование строительного уровня.
Разметка места крепления раковины.
Устанавливаем крепления для кронштейнов
На этом этапе формируют отверстия. После просверливания лунки заполняют клеем, затем вводят туда дюбели. Для закрепления кронштейнов используют анкерные болты длиной более 7,5 см, т.к. под воздействием нагрузки обыкновенные саморезы выскакивают из стены с дюбелями.
Ставим и подключаем смеситель
Установку рукомойника на держатели выполняют двумя способами:
- Чашу ставят на крепления, после чего стену облицовывают плиткой. Зазор между умывальником и кафелем заполняют герметиком. Рекомендуется выбирать то средство, в составе которой содержаться противогрибковые добавки.
- Состав наносят на поверхности держателей. Далее можно поставить чашу и заполнить стык сантехническим герметиком. Это предотвращает смещение мойки.
Подключаем сифон к канализации
Чтобы собрать сливную систему своими руками, нужно выполнить такие действия:
- Подсоединяют перелив. Отверстие совмещают с гибким шлангом, который подводят к основанию сифона, фиксируют гайкой.
- На пазы умывальника ставят решетку, резиновые уплотнители, винт. Закручивают болт, обеспечивая герметичное соединение.
- Сливную трубу сгибают, вводят в патрубок канализации. Приподнимают раковину, придвигают постамент, размещая в нем элементы системы водоотведения.
Подключение сифона к канализации.
Исправление допущенных во время установки ошибок
Если монтаж сантехнического оборудования совершается впервые, то ввиду неопытности и невнимательности может быть сделано ряд недочетов, которые в дальнейшем отрицательно отразятся на работе изделия. Во избежание этого все из них требуется заблаговременно устранить. Допущенные при установке раковины с пьедесталом ошибки после некоторого времени эксплуатации изделия могут проявиться следующим образом:
- Отклонение раковины в сторону. Причина заключается в фиксации крепежей не по прямой линии. Устранить небольшой угол наклона можно при выполнении их регулировки. Если же перепад можно увидеть невооруженным глазом, то необходимо проделать новое отверстие для крепежного элемента.
- На поверхности водопровода в процессе и после использования появляется вода. Причиной является плохо произведенная обработка стыков между элементами изделия. Для устранения нужно выполнить повторное подтягивание крепежей, удостовериться в плотном прилегании прокладок и совершить нанесение силикона в местах соединений труб.
- Если возник зазор между умывальником и настенной конструкцией, то надо произвести обработку щели силиконовым герметиком.
- При недостаточной устойчивости раковины и ее раскачивании по разным сторонам необходимо аккуратно подтянуть винты. Кроме этого требуется убедиться в ровности напольного покрытия, поскольку в ином случае сантехническое оборудование будет нужно полностью снимать, выполнять выравнивание пола и повторно фиксировать изделие на его прежнее место размещения.
- Если при использовании вода не проходит в сливное отверстие, то чтобы исключить вероятность потопа, требуется совершить осмотр гофры, которая отвечает за отвод жидкости. Она должна быть прямой, ввиду чего при наличии перегибов и скручиваний следует осуществить их выпрямление, а также произвести легкое ослабление соединений.
Ознакомившись с тем как установить раковину с пьедесталом в ванной и подготовив все необходимые для работ инструменты и материалы можно приступать к монтажу сантехнического оборудования своими руками, не забывая при этом соблюдать правильную последовательность действий и важные нюансы, благодаря чему удастся исключить возникновение ошибок в ходе будущей эксплуатации изделия.
Видео:
Вас может заинтересовать:
Как выбрать мойку из искусственного камня с учетом важных критериев
Как установить чугунную ванну своими руками и избежать возможных ошибок
Как герметизировать раковину должным образом в столешнице
Типы сифонов
Сифон – механизм, находящийся прямо под раковиной, похож на букву S, соединяет чашу умывальника и канализацию. Типы сифонов:
- 1.В виде бутылки. Оснащены системой затвора воды, к нему также можно присоединить слив воды от стиральной машинки, возможность проводить самостоятельную очистку. Часто сифон применятся с системой перелива.
- 2.Трубчатая модель сифона выполнена в виде трубы с изгибами. Изгиб трубы осуществляет затвор от канализационных запахов.
- 3.Гофрированный сифон похож на трубчатый тип, только имеет пластичную структуру, может изменять форму и уменьшать размеры.
- 4.Сифоны с переливной системой. Любой тип сифона может быть оснащен системой перелива, защищающий раковину от переполнения. Сифон имеет дополнительную трубочку, которая присоединяется к отверстию сбоку раковины.
Как установить раковину
Чтобы установить раковину в ванной, не обязательно быть профессиональным сантехником.
Такая работа вполне доступна каждому. Но сначала нужно определить для раковины
место — желательно недалеко от трубопроводов горячей и холодной воды. Инструменты и материалы
- разводной ключ
- рожковый ключ
- комбинированный ключ
- рулетка
- карандаш
- уровень
- защитные очки
- дрель
- сверла для плитки и бетона пластмассовые дюбели молоток
- крепежные шпильки
Во время сверления отверстий надевайте защитные очки, чтобы не поранить глаза
острыми осколками плитки.
1 Отмеряем рулеткой необходимую высоту установки раковины. 2. Делаем отметку карандашом в нужном месте.

3. Проводим по уровню линию установки раковины.
4. Приложив раковину к стене, отмечаем места установки креплений. 5.Определяем центры отверстий.

6. Просверливаем отверстия под крепления.
7.Вставляем пластмассовые дюбели. 8. Забиваем пластмассовые дюбели до упора
9.Вкручиваем в дюбели крепежные шпильки

10.Устанавливаем пьедестал раковины.
11.Надеваем собранную раковину на крепежные шпильки и затягиваем на них гайки.
Не забываем подложить под гайки прокладки и поставить шайбы.
12. Закрепляем раковину так, чтобы ни она, ни кронштейны не шатались.
Установка однорычажного смесителя
Иногда бывает, что необходимо поменять вышедший из строя смеситель или старый
после ремонта перестал вписываться в интерьер новой кухни. Чтобы установить
новый смеситель, сначала необходимо выполнить демонтаж смесителя.
Внимание После сборки смесителя его обычно подключают к горячей и холодной воде. Дополнительная информация Комплект однорычажного смесителя с гибкими шлангами. Дополнительная информация Комплект однорычажного смесителя с гибкими шлангами
Дополнительная информация Комплект однорычажного смесителя с гибкими шлангами
1. Вкручиваем в смеситель гибкий шланг.
2. Вкручиваем шпильку в резьбовое отверстие.
3. Вставляем уплотнительное кольцо.
4. Вкручиваем второй гибкий шланг
5. Положив раковину на пол, заводим поочередно гибкие шланги в отверстие раковины.
6. Устанавливаем смеситель на место. 7. Надеваем на шпильку резиновую прокладку.
8. Устанавливаем С-образную пластину.
9. Закрепляем смеситель гайкой 10. Устанавливаем решетку на сливе .
12. Устанавливаем в отверстие перелива декоративное кольцо-обрамление.
Демонтаж раковины на пьедестале
Если ваша старая раковина пришла в негодность или перестала вам нравиться и вы
хотите ее заменить, сделать это совсем несложно.
Совет Пока не откручены болты крепления раковины к стене, пьедестал лучше не убирайте: он послужит опорой для раковины, особенно если работы ведутся в одиночку
При снятии раковины нужно соблюдать осторожность, чтобы не уронить пьедестал:он не закреплен. Перед откручиванием накидных гаек на гибких шлангах положите на пол тряпку
- разводной ключ(или сантехнические клещи)
- рожковый ключ
- комбинированный ключ
- отвертка
- матерчатые перчатки
Перекрываем подача горячей и холодной воды.
1. Необходимо убедится что вода перекрыто.
2.Откручиваем накидные гайки разводным или рожковым ключом нужного размера. Можно
также воспользоваться сантехническими клещами или ключом «попкой», если гайки
3.Снимаем гибкие шланги. Снимаем накладные пластмассовые заглушки с болтов
4.Выкручиваем болты или свинчиваем гайки.
5.Отсоединяем сифон: вверху раскручиваем запорную гайку, сдвигаем вниз клиновидное уплотнение, откручиваем гайку со сливной трубы и вынимаем сифон.
6.Аккуратно снимаем раковину.
7. После снятия раковины убираем пьедестал. Если конструкция позволяет, можно поставить на него новую раковину.
Установка сифона на раковину здесь
Основные типы моделей
По способу установки раковины в ванной оборудование принято делить на три группы:
Напольные – автономно стоящие комплекты типа «Тюльпан». При этом пьедестал может быть как отделяемым элементом, так и монолитной частью общей конструкции.
Консольными называют конструкции, которые закрепляются подвесным способом при помощи вспомогательной инсталляции.
Встроенные – это модели, утапливаемые в столешницу.
При этом монтаж раковины предполагает два варианта фиксации:
- нижний – когда раковина накладывается сверху отверстия в столешнице;
- нижний – борта чаши находятся на одном уровне с поверхностью стола или тумбы.
Список необходимых инструментов
Имея необходимые инструменты и следуя правилам установки, монтаж раковины с пьедесталом можно сделать и без посторонней помощи. Чтобы осуществить монтаж и крепление раковины, вам понадобятся следующие инструменты:
С тыльной стороны чашу необходимо смазать мастикой либо силиконом.
- строительный уровень;
- дрель или перфоратор;
- разводной или гаечный ключ;
- сверла по бетону (с твердосплавными наконечниками);
- молоток;
- сантехнические винты-саморезы;
- распорные пластмассовые дюбели;
- гайки;
- пластмассовые втулки-прокладки;
- пластмассовые маскирующие заглушки;
- карандаш или маркер;
- фум лента или льняная пакля (для уплотнения резьбы);
- дюбели;
- силиконовый герметик.
Критерии выбора
Ремонт в ванной сопровождается заменой, отслужившего своё, оборудования. Промышленность предлагает усовершенствованные модификации, оснащенные умными девайсами.
Претерпел революционные изменения список материалов, идущих на изготовление продукции. На смену привычному санфаянсу пришли акрил и композитные составы. В мире форм также наблюдается большое количество новинок в виде инсталляций, угловых конструкций и монолитных образцов.
Как не потеряться в этом ассортиментном изобилии? При покупке мойки для ванной с пьедесталом акцентируйте внимание на шести пунктах:
Габариты
Перед поездкой в магазин необходимо сделать замеры ванной комнаты. Полученные цифры – основа схемы с точками размещения сантехнических приборов. В плане также обозначается расположение мебели в ванной. Высота пьедестала для раковины, глубина, диаметр подбираются с привязкой к параметрам помещения.
Товарная линейка представлена тремя типами изделия:
- Раздельные (раковины тюльпан),
- монолитные,
- полупьедестал.

Материал
При выборе модели раковины изучитесвойства и качества материала.
- Санфаянс – классический вариант. По свидетельству маркетологов 60% рынка сантехнического оборудования для ванной комнаты и кухни изготовлено из фаянса.
- Второе по популярности место занимает санфарфор. Разница между материалами в составе. Доля полезных примесей в санфарфоре в 2 раза выше. Таким образом обеспечивается повышенный уровень прочности, снижается пористость покрытия. Конкурирующие между собой материалы внешне трудно отличимы.
- Искусственный камень относится к ценовому сегменту класса люкс. Композиты – долговечный, износостойкий, термоустойчивый вариант. Разнообразие цветов и форм умывальников на пьедестале натурального камня. Единственный минус – вес. Относительно миниатюрная конструкция из искусственного камня весит 25 – 30 кг.
- Особняком в категории стоят акриловые приборы. Модная тенденция в сфере дизайна – инновационное технологическое решение. Положительные качества и свойства превышают показатели аналогов в 2 – 3 раза. Лидер продаж – монолитная модель.
- Стекло – подходит для дизайн-проектов в стиле hi-tech. Мониторинговая группа Houzz Bathroom Trends Study выявила возросший интерес россиян к комплектам из стекла. Тем не менее доля потребительского рынка остается небольшой и относится к группе эксклюзивных. Пьедестал под раковину не предусмотрен.
- Стальные изготавливаются, как правило, по индивидуальному заказу для мест общественного пользования. В быту практически не используются.
Технические параметры
Параметры технические – область повышенного внимания. Модификации различаются:
- по месту расположения смесителя,
- по диаметру сливного отверстия,
- по наличию/отсутствию донного клапана, устройства слив – перелив, дополнительных опций.
Способ монтажа
Способ монтажа – один из приоритетов. Установка раковины с пьедесталом имеет три версии: пристенное закрепление, монтаж раковины с пьедесталом в пол, фиксация ко дну столешницы или к основанию тумбы. 90% раковин с пьедесталом монтируются к стене.
Форма выбирается в строгом соответствии с дизайн-проектом и габаритами помещения.
Список необходимых инструментов
Имея необходимые инструменты и следуя правилам установки, монтаж раковины с пьедесталом можно сделать и без посторонней помощи. Чтобы осуществить монтаж и крепление раковины, вам понадобятся следующие инструменты:

С тыльной стороны чашу необходимо смазать мастикой либо силиконом.
- строительный уровень;
- дрель или перфоратор;
- разводной или гаечный ключ;
- сверла по бетону (с твердосплавными наконечниками);
- молоток;
- сантехнические винты-саморезы;
- распорные пластмассовые дюбели;
- гайки;
- пластмассовые втулки-прокладки;
- пластмассовые маскирующие заглушки;
- карандаш или маркер;
- фум лента или льняная пакля (для уплотнения резьбы);
- дюбели;
- силиконовый герметик.
Особенности конструкции

Конструкция Тюльпан
Такая напольная подставка под раковину одновременно является ее опорой и бывает в форме цилиндра или вазы с росписью.
Сейчас выпускаются умывальники в ванную с полупьедесталом, прикрепленным к стене, а пространство под ними свободно.

Раковина с полупьедесталом: мы сами определяем нужную высоту установки.
- Чаши из фаянса, фарфора выпускаются различной формы и богатых расцветок.
- Для нас важен и тип раковины: глухой вариант или с отверстием, предназначенным для установки там смесителя. Хороши оба вида, но для незадействованного отверстия нужна заглушка. Если есть общий смеситель в раковину и ванну, подойдет изделие без него.
- Лучше, если сифон входит в комплектацию, но консультанты в магазине подберут нужный вариант.
- Высота Тюльпана – 70-80 см, при этом можно увеличить параметр небольшим постаментом, а вот уменьшить нельзя. Но тогда нам подойдет настенный полупьедестал.

Размеры этого комплекта Ромашки стандартны: 450*600*815.
- Целесообразно купить раковину с отверстием для перелива: при забитом грязью сливе вода все же будет стекать в канализацию, но не через край.
- Украшение интерьера: пьедестал для раковины может быть любого размера и оригинальной формы плюс его традиционная роль надежной опоры для умывальника.
- Из величайшего ассортимента встраиваемых, подвесных и накладных раковин умывальник с пьедесталом (на изящной ножке) – оптимальный выбор.
- Конструктивная вариативность моделей: с креплением чаши к стене, либо с установкой на напольной подставке или на полупьедестал для раковины.
Соединения
Сопряжение деталей – ключевой этап техпроцесса. ЛДСП, МДФ собирают на конфирматах, предварительно сверля отверстия ступенчатыми сверлами. Соединение технологичное, но недостаточно надежное вследствие прессованного строения плит. Гипсокартон крепят саморезами к оцинковке, отделку приклеивают.

Соединение конфирматами.
Длинные доски щита сплачивают шпунтовым, шпоночным способом. Щиты с боковинами собирают на нагелях, шпонках, в ус.
Борта ящиков сопрягают на шипах, отличаются прочностью трудоемкие соединения типа «ласточкин хвост».

Качественное шиповое соединение сложно сделать ножовкой и стамеской, оптимально воспользоваться фрезером или шипорезкой. Выручает крепление конфирматами, усиленное фиксирующими шкантами на клею.

Как провести демонтаж акрилового вкладыша
«Бывают ситуации, когда служивший несколько лет, акриловый вкладыш пришел в негодность. Так получилось и у нас. Я вешал полочку и стоя в ванной, уронил дрель. Сверло, которое не успело остановиться за время полета, сильно повредило вставку. Мы с женой были в растерянности. Можно ли устанавливать вкладыш на вкладыш? Или как иначе восстановить лопнувшую вставку?
Позвонили специалистам, они нас успокоили. Лопнувший вкладыш очень легко демонтировать и поставить новый. Опытные ребята аккуратно при помощи маленькой круглой пилы надрезали акриловый слой в нескольких местах и сняли его. Зачистили старую ванну от монтажной пены, остатков герметика и уложили новую вставку. Теперь постараюсь больше не ронять работающую дрель».
Виталий Озаревский, Ростов
Конечно, акриловый вкладыш – вещь довольно удобная и практичная. Но ничто не сравнится с настоящей акриловой ванной. Плюсы и минусы, отзывы о подобных изделиях помогут легко определиться с выбором и решить, какая ванна будет качественнее и прослужит дольше.
Основные виды раковин
Способ установки раковины зависит от ее типа. Производители предлагают такие виды умывальников:
- Встроенные. Их врезают в верхнюю часть тумбы, стола или другого мебельного модуля, имеющего плоскую поверхность. Они маскируют водопроводные и канализационные трубы.
- С пьедесталом. Такие модели сочетаются с классическими интерьерами. На горизонтальное основание ставится массивный постамент, на который опирается чаша. Опора также маскирует инженерные конструкции.
- Консольные. Сантехнический прибор подвешивают с помощью специальной рамки. Умывальник имеет стильный современный дизайн.
- С полупьедесталом. Оснащены подставкой, которая опирается на стену, за счет чего раковина выглядит изящнее. Установка затрудняется необходимостью обеспечения заданной высоты сифона.
Встраиваемые модели размещают на столешнице, закрепляя бортиками по периметру основания или вводя в опору снизу. Независимо от метода установки, чаши бывают круглыми, овальными, прямоугольными. Полувстраиваемые модели, огибающие кромку поверхности, подходят для санузла небольшой площади. При установке такого изделия создают самодельный шкаф, закрывающий трубы.
Раковина в ванной комнате.
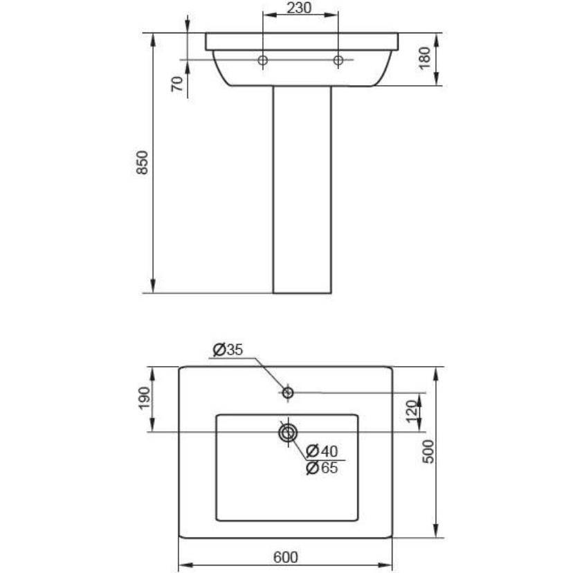
Расчеты и размеры для монтажной схемы
Прежде чем приступать к монтажу, нужно определиться с проектом. Для начала ознакомьтесь с рекомендациями касательно установки умывальника с пьедесталом в ванной комнате, и с правилами расположения чаши по высоте, а затем приступайте к построению плана и подсчетам материалов.

Замаскированные коммуникации не будут бросаться в глаза. Чтобы все получилось, размещайте все детали в соответствии со схемой монтажа
Прежде всего – размер самого умывальника. Лучше не покупать для дома чаши шириной меньше 50 см. Ими будет неудобно пользоваться. Традиционный размер – 55-65 см. Высота раковины должна подбираться в зависимости от роста потенциальных пользователей.
Существуют стандарты, которые предполагают установку раковины на высоте 80-82 см от пола. Этот размер является оптимальным для большинства взрослых людей с ростом 160-180 см. Если вы планируете покупать поворотный смеситель с изливом для раковины и ванны, тогда можно немного отойти от стандартов и установить его на высоте 85 см.

На чертеже видны все размеры: между креплениями, между выводами холодной и горячей воды, расположение слива и его диаметр
Ничего не может помешать вам установить умывальник-тюльпан выше, если вам так будет удобнее. Высота пьедестала обычно составляет около 65 см, поэтому смонтировать чашу ниже у вас не получится. А вот сделать под тюльпаном возвышение-подиум не составит труда.
Еще один важный параметр, которым часто пренебрегают ввиду ограниченной площади в ванной комнате, – пространство перед умывальником. Перед раковиной должно быть не меньше 70 см свободного места, иначе пользоваться им будет неудобно. Плохая идея – установить чашу сантехники в узкой нише в стене или между другими предметами интерьера.
Каждый сантехнический прибор имеет свою монтажную схему, предусмотренную производителем.
На ней указаны основные данные для установки:
- с какой стороны подводится вода;
- высота креплений и основных конструктивных элементов;
- расположение относительно стены;
- наличие перелива и отверстия для смесителя;
- габариты самого прибора.
Рекомендуется ознакомиться с монтажной схемой вашего сантехнического прибора с пьедесталом еще до начала установки, а если речь идет о прокладке водопровода и канализации с нуля, то делать это нужно уже с учетом особенностей выбранной модели сантехники.
Подготовительные работы
Этап делится на две составляющие:
До того, как установить раковину с пьедесталом, необходимо очистить поверхность и проверить наличие инструментов:
- строительного уровня,
- набора отверток и гаечных ключей,
- перфоратора и дрели,
- фум-ленты, маркера, рулетки,
- силиконового герметика,
- ветоши.
Демонтаж проводится в случае замены старого оборудования и включает в себя:
- Отключение инженерных коммуникаций,
- Демонтирование сифона,
- Снятие крепежных элементов.
Перед тем, как сдвигать пьедестал для чаши и убирать раковину в сторону, необходимо проверить наличие силиконовой заливки в местах стыков. Обнаруженный силиконовой слой предварительно размачивают специальным средством – размягчителем для силиконового герметика. Остатки аккуратно счищаются строительным ножом.
Исправление допущенных во время установки ошибок
Если монтаж сантехнического оборудования совершается впервые, то ввиду неопытности и невнимательности может быть сделано ряд недочетов, которые в дальнейшем отрицательно отразятся на работе изделия. Во избежание этого все из них требуется заблаговременно устранить. Допущенные при установке раковины с пьедесталом ошибки после некоторого времени эксплуатации изделия могут проявиться следующим образом:
- Отклонение раковины в сторону. Причина заключается в фиксации крепежей не по прямой линии. Устранить небольшой угол наклона можно при выполнении их регулировки. Если же перепад можно увидеть невооруженным глазом, то необходимо проделать новое отверстие для крепежного элемента.
- На поверхности водопровода в процессе и после использования появляется вода. Причиной является плохо произведенная обработка стыков между элементами изделия. Для устранения нужно выполнить повторное подтягивание крепежей, удостовериться в плотном прилегании прокладок и совершить нанесение силикона в местах соединений труб.
- Если возник зазор между умывальником и настенной конструкцией, то надо произвести обработку щели силиконовым герметиком.
- При недостаточной устойчивости раковины и ее раскачивании по разным сторонам необходимо аккуратно подтянуть винты. Кроме этого требуется убедиться в ровности напольного покрытия, поскольку в ином случае сантехническое оборудование будет нужно полностью снимать, выполнять выравнивание пола и повторно фиксировать изделие на его прежнее место размещения.
- Если при использовании вода не проходит в сливное отверстие, то чтобы исключить вероятность потопа, требуется совершить осмотр гофры, которая отвечает за отвод жидкости. Она должна быть прямой, ввиду чего при наличии перегибов и скручиваний следует осуществить их выпрямление, а также произвести легкое ослабление соединений.
Ознакомившись с тем как установить раковину с пьедесталом в ванной и подготовив все необходимые для работ инструменты и материалы можно приступать к монтажу сантехнического оборудования своими руками, не забывая при этом соблюдать правильную последовательность действий и важные нюансы, благодаря чему удастся исключить возникновение ошибок в ходе будущей эксплуатации изделия.
Видео:
Вас может заинтересовать:
Как установить умывальник над стиральной машиной без сторонней помощи своими руками
Как устранить засор в раковине в ванной с использованием бытовой химии и другими методами
Как герметизировать раковину должным образом в столешнице
Преимущества и недостатки раковины с пьедесталом
Умывальники данной разновидности обладают простой конструкции, но помимо этого таким моделям присущий ряд следующих достоинств:
- Универсальная составляющая. Современные модели раковин с пьедесталом изготовляются с учетом интерьеров помещений, из различных материалов, в разных цветах и формах, а также имеют возможность осуществлять монтаж изделия не только к настенной плоскости, но и размещать его в углу ванной комнаты. С учетом указанных факторов можно подобрать наиболее подходящий вариант в соответствии с личными предпочтениями.
- Габариты. Некоторые умывальники выпускаются с компактными размерами, благодаря чему они отлично подходят даже для помещений с ограниченным свободным пространством.
- Стоимость. На цену изделий по большому счету влияет материал, из которого они изготовлены. Их же простая конструкция никоим образом не делает умывальники более дорогостоящими, ввиду чего за приобретение удобной для себя модели не приходится переплачивать. Большая же часть представленных на рынке изделий является доступной по стоимости.
- Легкость монтажа. Процесс установки состоит из потребности в закреплении на стене нескольких крепежей, которые будут обеспечивать прочность фиксации умывальника. Потратить значительное количество времени потребуется на правильный монтаж смесителя и сифона, но это приходится осуществлять вне зависимости от разновидности раковины.
Единственный недостаток умывальников этого вида заключается в их довольно крупном весе, ввиду чего необходимо учитывать, способен ли пол полноценно переносить такую нагрузку.
Выводы и полезное видео по теме
Конечно, лучше один раз увидеть, чем 100 раз прочитать в интернете. Мы сделали подборку хороших видео-обзоров, которые помогут расставить все точки над «и» в таком непростом деле, как установка раковины с пьедесталом.
Установка раковины с пьедесталом на практическом примере:
Отдельное внимание герметизации стыков:
Если вы все-таки решились установить раковину с пьедесталом без профессиональной помощи, перечитайте все рекомендации дважды, особенно, если будете делать это впервые. Разумеется, могут возникать непредвиденные ситуации, от этого никто не застрахован. Будучи подкованным теоретически, вы будете видеть полную картину процесса. Если четко следовать инструкции, все должно пойти как по маслу.





































