Влияние хозпостроек на дом и участок
Как известно, любое сооружение влияет не только на участок и его визуальное восприятие, но и на частный дом
В связи с этим важно, чтобы хозяйственная постройка была не только полезной и функциональной, но стильной и привлекательной. Стиль хозпостройки должен совпадать со стилем частного дома, дополняя его своим красивым оформлением
Если это невозможно, то нужно правильно выбрать место для постройки.
Назначение постройки влияет не только на ее внешний вид, но и проект, который будет использоваться для ее возведения
Также важно продумать внутреннюю планировку помещения, ведь только так можно создать функциональное и привлекательное здание. Кроме того, нужно заранее продумать логистику участка, ведь хозблок и инструменты должны быть как можно ближе к месту работ
Возведение хозблока – внутреннее обустройство
Вопрос обустройства подсобки зависит от ее типа. С капитальным вариантом все очевидно – нужна дюжина-другая бытовых средств плюс те, которые приветствует хозблок типовой:
- Крючки;
- Стеллаж;
- Полки;
- Верстак;
- Стул;
- Ящики.

Последние могут использоваться как для расходных материалов, так и для припасов.
Чтобы дизайн хозблока не был загружен, чтобы внутри подсобки можно было удобно проходить и работать, типовую мебель можно заменять эргономичной:
- Складной стул;
- Ниша с полками;
- Выдвижные ящики;
- Верстак на роликах.

И не стоит забывать про правильное размещение изделий. Верстак должен находиться напротив окон, стеллаж и крючки – простилаться вдоль одной стены, ящики – располагаться в углу, полки – висеть друг над другом или в разных незанятых местах.
Другие стандарты
Расстояние объектов устанавливается для обеспечения противопожарной безопасности, а также равномерного доступа солнечных лучей. Например, если отсутствует магистральное газоснабжение, то баллоны с газом должны храниться в пристройке на глухой стороне стены или в специальном металлическом ящике.
Нормы по охране природы гласят о том, что застройки должны находиться как минимум в 15 м от границ леса. Об этом говорится в СНиП 30-02-97. То, как они должны располагаться относительно водных объектов, определяет Водный кодекс. В основном речь идет о снабжении и отведении воды. Также существуют ограничения для выгула животных, сооружения компостов и так далее на береговой линии. Береговая линия до 20 м является государственной собственностью.
Дровницы
Вариантов дровницы как хранилища расходной партии топлива для камина (слева на рис.) множество, но она не функциональна. Для подноски дров все равно нужна отдельная дровница-корзинка, а при перекладке их в дровницу-подставку мусор сыплется на пол.
Дровницы из металла
Комбинированных дровниц (остальные поз. на рис.) разной вместимости, сложности, удобства и стоимости тоже известно много. Но в этом ряду особого внимания заслуживает дровница из старого бочонка или небольшой бочки, см. рис.:
Схема устройства дровницы из бочонка или небольшой бочки
- Оригинальна, стильна, отлично вписывается в большинство интерьеров с печью или камином.
- Изготовленная из бочки, вмещает загрузку дров на суточную топку печи.
- Дровницу из бочки/бочонка можно, приделав к ней лямку, тащить по снегу, как санки, а охапка/вязанка дров весит немало.
Если у вас найдется подходящая заготовка для дровницы из бочки/бочонка, то учтите, что сразу выбивать оба днища или оставшееся нельзя, рассыплется. Нужно сначала скрепить обручи с клепками саморезами, насверлив предварительно в обручах отверстия под них. Сверлить нужно сверлом с ограничителем глубины сверления, но строительный не годится, его щуп слишком далеко в стороне. Заправленное в инструмент сверло нужно плотно обернуть тонкой жестью (напр., от кофейной банки), так, чтобы из обертки выглядывал его кончик на толщину обруча, и обмотать обертку тонкой проволокой. Накручивать жестяной ограничитель на сверло нужно ПРОТИВ направления его вращения, чтобы не разворачивался, когда обертка упрется в металл обруча.
Место под строительство
При выборе места под строительство хозблока следует обращать внимание на ровные участки с плотным земельным слоем. Это упростит подготовительные работы. Следует учесть, как предполагается организовать душ и санузел
Потребуется ли выкапывание выгребной ямы или планируется использование антисептических средств. В первом случае, как правило, под домом обустраивают систему отведения воды, а саму яму располагают за постройкой. Хозблок с душем и туалетом потребует проведения электро- и водоснабжения
Следует учесть, как предполагается организовать душ и санузел. Потребуется ли выкапывание выгребной ямы или планируется использование антисептических средств. В первом случае, как правило, под домом обустраивают систему отведения воды, а саму яму располагают за постройкой. Хозблок с душем и туалетом потребует проведения электро- и водоснабжения.
При выборе места под строительство, в основном, опираются на функционал хозблока, предусматривают вопросы, которые обеспечат удобную эксплуатацию здания.
Что сначала?
Ориентируемся на месте, разговариваем с соседями. Цель – найти наилучшее место для сарая: чтобы был не очень далеко, но и не торчал перед глазами и укладывался в санитарные нормы по расстояниям до источников водоснабжения и др. подверженных загрязнению объектов (жилые дома, посадки сельхозкультур, особенно корнеплодов); Вдруг по п. 1 ясности нет, строим сарай либо передвижной, либо времянку из дешевого бросового материала. Тем не менее, сарай на даче из горбыля или досок б/у возможно построить достаточно долговечным, недорого и несложно облагородить до придания ему вполне приглядного вида, см. далее; Если с местом под сарай определились сразу, выбираем тип верхнего строения с учетом возможности обзаведения домашними животными; Подбираем к «коробке» крышу; Определяем тип фундамента; Проектируем сарай с привязкой на местности
Последнее особо важно, т.к. надзорные органы с источниками загрязнений не церемонятся; Сводим (подбиваем) смету на строительство и оформление; Возможно, корректируем проект, если сарай в бюджет не вписывается; Также, возможно, рассматриваем вариант самостроя с последующим узакониванием. Если сарай заведомо укладывается в СанПиНы (Санитарные Правила и Нормы), то так выйдет дешевле и проще, чем строить изначально по проекту; Закупаем материалы, строим
Если сарай заведомо укладывается в СанПиНы (Санитарные Правила и Нормы), то так выйдет дешевле и проще, чем строить изначально по проекту; Закупаем материалы, строим.
Как быть с проектом?
Сарай – легкое быстровозводимое не отапливаемое нежилое строение, из чего следуют важные облегчающие дело следствия. О них для строительства речь впереди, а пока нужно знать, что при оформлении/узаконивании наибольших придирок и сложностей следует ожидать по привязке на местности в соответствии с СанПиНами. Собственно проект сарая должен включать в себя листы с фасадами, план с разрезами, см. след 2 рис. и план-схему фундамента со спецификацией материалов на него, как на рис. с план-разрезами.

Лист фасадов из проекта сарая
Как правило, бесплатные проекты сараев из рунета утверждаются безо всякого и потом никто никогда не проверяет досконально, что там на самом деле построено. Похоже на проект, и ладно. Отклонения от проекта в строительстве допустимы, а в «мелкострое» для себя и без согласования можно обойтись. Но вот план-схему расположения на участке изучают очень внимательно, как и планы соседских участков и их согласия на строительство. Так что позаботьтесь собрать эти бумаги заранее, они действительны 3 года.

Лист план-разрезов из проекта сарая
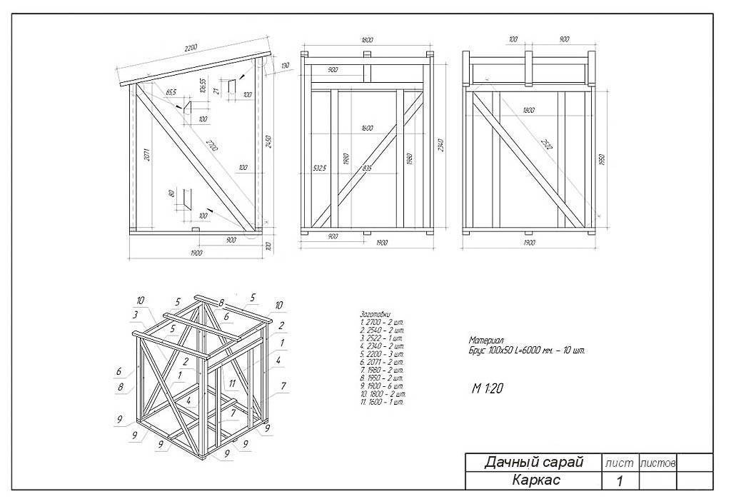
Возможно, въедливый чинуша потребует еще лист с конструкцией каркаса, т.к. нежилое-то оно нежилое, но люди туда заходят. На такой случай для образца – чертежи на рис. Кстати, это совсем неплохая сарайка для 6-соточной дачи. На крайний случай там и спать можно, улегшись по диагонали.

Каркас мини-сарая для маленького участка
О временных сараях
Добротный деревянный сарай без фундамента весит до тонны; с односкатной крышей и если строить аккуратно, но не по-купечески, можно уложиться в полтонны. Передвигать его на катках по слегам, см. рис., подваживая ломом, можно вдвоем. Чтобы поднять и поставить на основание с помощью лямок (веревок), хватит 10-12 крепких мужиков. Хотя как знать, не обойдется ли последующее угощение для этой оравы дороже аренды автокрана…

Передвижение сарая на катках
К чему это, кроме того, что спервоначала строить можно где угодно? К тому, что в таком случае проект нужен не более, чем для собачьей будки, а для нее он не нужен вовсе. Если год простоит, то потом, на фундаменте, узаконят, лишь бы в СанПиНы вписывался.
Однако тут встает вопрос уже для себя: а как на фундамент ставить? Надо бы на анкеры посадить, но не разбирать же постройку, чтобы сквозь венец их протолкнуть? Есть способ, о нем см. далее.
Какими вообще бывают дровники?
Начнем с того, что размеры дровника и его внешний вид напрямую зависят от количества дров, которое вы можете использовать за сезон.
Наиболее простой вариант – навес с немного поднятым над землей полом и тремя стенами. Такую постройку можно расположить во дворе отдельно, или сделать пристройку к сараю, дому.
Добротный крепкий дровник-навес из бревен можно соорудить, если у вас есть крепкие бревна для конструкции. Крыша у этого дровника простая – шифер положен прямо на балки перекрытия
Дровник может быть также частью сарая, если вы предусмотрите это в плане постройки. Это может быть также сооружение, напоминающее беседку с дверью или без двери.
Это и дровник, и сарай для хранения инвентаря, практичное сооружение с двускатной крышей и окном, наличие которого обеспечивает постоянное проветривание
Конструкция кровли
Деревянные доски для стропил должны иметь прорези в местах соединения их с брусом. Если проект предусматривает устройство односкатной крыши, можно вертикальные стойки с одной стороны делать длиннее, тем самым, обеспечив наклон кровли. В любом случае, нужна скатная крыша, чтобы с нее хорошо сходил снег и не задерживалась вода.
Облицевать ее можно любыми кровельными материалами: битумной черепицей, металлическими листами, шифером, деревом, металлочерепицей.
Также проект может учитывать совместную постройку под одной крышей или выполнение двух различных покрытий. Например, бытовка накрыта черепицей, а беседка – профнастилом.
Фото: садовый домик с односкатной крышей
3D модель Г-образной беседки с дровником
Самостоятельное строительство хозблока
Чтобы построить хозблок своими руками, нужно обладать некоторыми строительными навыками, подготовить инструмент и завезти материалы, освободить в своем графике время на то, чтобы возвести постройку. Если есть возможность, то лучше найти помощника.

Прежде чем приступить к строительству, полезно будет побродить по просторам сети, где выложено внушительное количество фото хозблоков для дачи. Ознакомившись с вариантами, не составит труда выбрать более подходящий для своего участка. Пока же рассмотрим вариант со строительством деревянного блока.
В качестве материала вполне подойдет доска (брус) 6-метровой длины; тогда, с целью ее экономии, оптимальные габариты строения имеет смысл сделать: по длине – 6 м, по ширине 3 м. Высота может не превышать 2 м. В итоге можно получить сарай площадью 12 квадратов и небольшую душевую под одной крышей.


Однако при индивидуальной договоренности, возможно, оформленной письменно, можно попробовать разместить хозблок спиной к соседскому аналогичному строению. В таком случае разногласия по вопросу эксплуатации задней части постройки не возникнут.

Фундамент. Деревянная постройка указанных размеров не является громоздкой, поэтому не требует обустройства тяжелой армированной ленты. Достаточно будет выкопать траншею с шириной и глубиной 40 см, засыпать дно песком, утрамбовать и пролить водой. Через неделю на такую подушку с расстоянием в полтора метра друг от друга выкладываются бетонные блоки. Затем на блоки укладывается гидроизоляция (подойдет рубероид), сверху монтируется брус.

Каркас. Для создания основной конструкции используется обрезная доска. Каркас изолируется с двух сторон при помощи пергамина, готовая стена обшивается вагонкой. Душевая утепляется теплоизолирующей минеральной ватой с пароизоляцией. Когда станет прохладнее, душевую можно будет продолжать использовать.

Крыша. Материалом для кровли может стать шифер. Используя поликарбонат, крышу продляют, создавая таким образом навес. Оптимальной конструкцией крыши с точки экономии времени и финансов станет односкатная кровля.

Стены и пол. Для пола подойдет доска 35 мм, в стенах оставляют небольшие оконные проемы для естественного источника света внутри помещения. В душевой имеет смысл поставить двойной стеклопакет.

Декор. Одним из лучших вариантов внутренней отделки хозблока считается покраска. Используются тонирующие пропитки и алкидные краски.

Некоторые начинающие дачники сомневаются в необходимости возведения хозблока, считая, что садовый и строительный инструмент разместиться где-нибудь и так. Но хранение в гараже или под навесом крайне неудобно в плане практической организации пространства. Поэтому не стоит пренебрегать хозяйственной постройкой, экономя на собственном комфорте.

К тому же обустройство хозблока не очень хлопотное и затратное дело, тем более в сравнении с возможностью комфортного пребывания на даче как во время строительства основного дома, так и при его эксплуатации.

Как сделать дровницу на даче своими руками (столбчатую): каркас и обшивка
Для этих целей подойдут обычные брусья, имеющие габариты 150х200 мм. Отдельные элементы каркаса фиксируются между собой посредством металлических уголков и саморезов. При желании для стыковки брусьев можно использовать одни саморезы, однако они должны обладать достаточной длиной.
Стоит отметить, что деревянные детали каркаса рекомендуется обработать специальными пропитками, которые увеличивают технические характеристики материала. Составы такого типа обеспечивают устойчивость к влаге и противодействуют проникновению насекомых. В качестве гидроизоляционного материала применяется рубероид, который необходимо сложить в 2 раза. Монтаж каркаса осуществляется с учетом предварительно составленного чертежа изготовления дровника на даче. Своими руками собрать подобную конструкцию не очень сложно, однако необходимо быть внимательными.
Дверь не является обязательным элементом дровницы, но чаще всего ее изготавливают в целях предосторожности
Элементы каркаса, расположенные в вертикальной плоскости, устанавливаются с помощью строительного уголка
Важно запомнить, что существует определенная последовательность монтажа стоек каркаса. Данный процесс производится в следующем порядке:
- задние стойки;
- боковые;
- передние.
На следующем этапе выполняется верхняя обвязка каркасной конструкции деревянными элементами. Разобраться в нюансах монтажа наглядно помогут фото дровниц на улице для дачи (на разных этапах сборки).
После монтажа стропильной системы для будущей кровли можно приступить к формированию дверного проема. Для этого потребуется зафиксировать две балки соответствующего размера на необходимой высоте.
Обратите внимание! Дверь не является обязательным элементом столбчатой конструкции для хранения дров, но чаще всего ее выполняют в целях предосторожности. Деревянные детали каркаса дровника рекомендуется обработать специальными пропитками, чтобы продлить срок его эксплуатации
Деревянные детали каркаса дровника рекомендуется обработать специальными пропитками, чтобы продлить срок его эксплуатации

Деревянные детали каркаса дровника рекомендуется обработать специальными пропитками, чтобы продлить срок его эксплуатации.
Как построить капитальный хозблок из пеноблоков
Работа с возведением сарая из пеноблока не требует наличия особых навыков у исполнителя, поэтому такой объект построить сможет каждый хозяин.
Преимуществом готового хозблока будет довольно низкая теплопроводность: он не будет сильно промерзать за счет особой структуры пеноблока. Наличие завоздушенностей внутри этого стройматериала гарантирует поддержание высоких температур внутри строения.
Хозблок из пеноблоков идеально подходят для содержания птицы и мелкого скота, и стать отличной мастерской. Но чтобы гарантировать сохранность строения, нужно в обязательном порядке позаботиться о надежной защите пеноблоков от влаги. Прямой контакт с дождевой водой и снегом приведет к очень быстрому разрушению стройматериала. Также владельцам следует хорошо продумать водосток. Наличие мини-навеса вокруг стен, а также отвод воды на 0,5 или более метров от постройки станет гарантией его долгого срока службы.
Советы по заготовке и хранению дров в дровнике
Хотя заготовка и хранение дров — дело нехитрое, многие умудряются даже в этом совершать ошибки. Чтобы новичок не «оступился» в первый раз, ему помогут советы «бывалых»:
- Если заготовка дров будет проводиться круглый год, то рядом с дровником нужно обустроить площадку для распила бревен и раскалывания колод. Хотя лучше позаботиться о запасах заранее еще в относительно теплое время года. Большинство завершают заготовку к концу осени.
- Дрова, заготовленные весной и летом, сохнут дольше остальных. На их просушку может понадобиться до 10 месяцев. Оптимальный вариант — «осенние» дрова. «Зимние» сохнут быстрее всего, но из-за особых погодных условий процесс заготовки более трудоемкий.
- Нельзя выкладывать дрова на сырую землю. Древесина очень быстро впитывает влагу. Если дровница только в проекте, а запасы уже имеются, то для них выстилают рубероид. По бокам ряды фиксируют металлическими или деревянными столбиками, вертикально вкопанными в землю. По мере высыхания запасы начнут деформироваться и дадут усадку, что может привести к разрушению поленницы.
- Нельзя «смешивать» сухие дрова с еще сырыми. При последовательной заготовке их кладут либо в разные углы дровницы, либо в отдельные секции. В этом плане весьма удобны конструкции «стеллажи» или «соты» из бочек. Для каждой партии можно выделить отдельную полку.
- Если крыши в дровнице нет, а такие модели тоже встречаются, то верхние ряды дров должны укладываться друг на дружку с уклоном, как черепица или по принципу чешуи, чтобы влага не скапливалась и не попадала внутрь поленниц, а стекала на землю.
- Не стоит укладывать дрова в поленницах слишком плотно друг к другу. Между ними специально оставляют зазоры, которые поспособствуют хорошему вентилированию.

В дровник можно переоборудовать даже небольшой сарай, который давно не используется по прямому назначению. Внутри его делят на секции, а в стенах делают отверстия для вентиляции.
Разновидности
Существуют разные виды дровников.
Они отличаются друг от друга по нескольким признакам:
В первую очередь выбирают место установки. Оно должно находиться максимально близко к печи.
Различают три варианта:
уличное стационарное расположение
мобильное сооружение
размещение небольшой дровницы внутри бани
Первый вариант применяют в усадьбах, где никаких изменений в расположении надворных построек не предвидится, а размер бани требует использования больших объемов дров.
Второй вариант используют в усадьбах с ограниченным свободным пространством. Строят дровницы на подвижной площадке (обычно ее устанавливают на колеса) и перемещают туда, где в данный момент сооружение никому не мешает.
Установка небольшого хранилища внутри бани позволяет не выходить лишний раз на улицу для подкладывания в печь очередной порции топлива. Как правило, объемы таких дровников невелики и требуют частого пополнения.
Сооружение может быть построено из разных материалов:
древесина (в том числе доски, бруски, бревнышки и прочие виды пиломатериала);
поддоны;
металл (трубы, уголки, арматура, прочие виды металлопроката);
штучные стройматериалы традиционного типа (кирпич, шлакоблоки и т. п.).
Большинство дровников выполнено из деревянных деталей. Это могут быть доски, бруски, нередко используют горбыль и прочие виды недорогого и практичного материала. Более прочные кирпичные или блочные сооружения строят для увеличения пожарной безопасности — в негорючем отсеке можно предотвратить распространение огня в случае возгорания дров.
Металлические дровники изготавливают для увеличения скорости сборки, прочности и долговечности сооружения. Особенной практичностью славятся дровники из алюминиевой трубы прямоугольного сечения. Для изготовления требуется определенное количество труб и несколько часов времени, а срок эксплуатации такого сооружения практически неограничен.
Существуют также декоративные модели, украшенные ковкой и другими оригинальными деталями. Как правило, их устанавливают внутри бани для создания определенного стиля в интерьере помещения.
Этап 7: крепление стропил
Крепление стропил и обрешетка Собирать стропила удобнее и легче на земле. Получается, вы будете монтировать их на стойки каркаса в готовом виде. Для того чтобы крыша была с козырьком, который будет выступать по периметру, возьмите стропила длиной 5 м с сечением 100×50 мм. Соединять их друг с другом будет обрешетка из обрезных 30 мм досок. Стропила размещаются с шагом в 0,85 м. Обрешетку необязательно крепить плотно друг к другу. Все зависит от кровельного материала. Если его масса невелика, расстояние может быть больше, если же большая – доски укладываются плотнее.
Чтобы установить крышу, в стойках, на которые она будет опираться, нужно вырезать пазы под углом 10°. Почему 10°? Потому что перепад высоты между передними и задними стойками создает именно этот угол. Перед тем как установить крышу, вам придется зашить ее свесы и карнизы обрезной 30 мм доской. После этого сделайте пол, используя половую доску. Можно использовать как гвозди, так и саморезы. В стойках сделайте отверстия под саморезы. Чтобы готовую крышу поднять наверх, можно использовать лаги, которые надо разместить сзади здания. По ним конструкцию поднимают наверх, стропила устанавливаются в пазы на стойках и все закрепляется саморезами.
Деревянный хозблок
Деревянные хозблоки привлекают экологичностью, так как дерево — это безопасный материал, не выделяющий токсичных веществ. Кроме того, такая конструкция обладает хорошими теплоизоляционными свойствами, легкостью, нетребовательностью и умеренной стоимостью.
К недостаткам сооружений из дерева относят высокую изнашиваемость природного материала. Помимо того, владелец деревянного хозблока может столкнуться с высокой влажностью внутри, риском затопления из-за недостаточной гидроизоляции. Все потому, что деревянные конструкции более подвержены влиянию погодных условий. Хотя воздействие некоторых природных факторов можно минимизировать установкой металлической крыши.
Этапы изготовления каркаса
- Для основы каркаса изготавливается рама на фундаменте поверх гидроизоляции по конфигурации строения, обычно прямоугольник, тщательно промеряются диагонали и стороны, выравнивается горизонтальное положение.
- Укладываются лаги для пола. Для столбчатого или свайного фундамента сечение лаг будет больше, а шаг между ними следует сократить. При строительстве на плитном основании устройство пола необязательно.
- Монтируются угловые, затем промежуточные стойки. Расстояние между ними определяется в зависимости от материала обшивки. Доска, горбыль, металл, профлист – 1,5 м, ОСБ – строго по размерам плит. Выверяется вертикальное положение стоек, особенно угловых. До фиксации каркаса их можно временно укрепить укосинами.
- Устанавливается верхняя обвязка.
- Монтируются стропила и обрешетка крыши длиной больше, чем само строение на 30-50 см с каждой стороны для свеса кровли.
- При необходимости набивается обрешетка на стенах.

Этапы строительства
Одними из самых популярных подсобных помещений считаются каркасники. Их возведение занимает минимум времени и производится по стандартной схеме:
Сборка основания
- После того как земля утрамбована, чтобы грунт дал максимальную усадку, подготовлена песчано-щебеночная подушка, размечается периметр постройки.
- По углам и посередине длинных сторон устанавливаются блоки из бетона.
- На блоках собирается деревянная рама или металлический каркас.
- Собираются лаги для пола, укладывается теплоизолирующий слой и напольное покрытие, например, линолеум.
Каркас сарая с односкатной крышейИсточник bankfs.ru
Возведение стен
- На углах выставляются опорные столбы, а по периметру стойки.
- Монтируются дверные и оконные коробки.
- Выполняется наружная и внутренняя обшивка.
Строительство односкатной кровли
- Каркасные стойки соединяют с рамой обвязки.
- Укладывают гидроизолирующий слой, затем крепят обрешетку.
- Обрешетку укрывают рубероидом или мягкой кровлей.
- Монтируют гофролист, как вариант – металлочерепицу.
После выполнения всех монтажных работ переходят к внутренней отделке помещения.
Двускатный каркасник на столбчатом фундаментеИсточник sami-stroim.ru
Рекомендации по самостоятельному строительству и подготовке
Самое главное – найти правильное место для постройки хозблока, разбив пространство участка на отдельные секции и зоны. При этом габариты сооружение должны отвечать определенным потребностям и сочетаться с ландшафтом местности.
Что важно сделать перед постройкой:
- детально спланировать бытовку, отобразив все размеры на чертеже;
- подготовить необходимый материал и инструменты;
- определить внутреннюю планировку сооружения, если планируется помещение с удобствами;
- если внутри подразумевается обустройство санузла, вся постройка должна находиться на расстоянии от 1 метра до ближайшей границы с соседним участком от 8 метров до основного жилого дома;
- если будет установлен сарай с животными, расстояние должно соблюдаться в 4 метра от соседей и в 12 метров от жилого дома;
- санузел должен находиться вдали от огорода, летней кухни, столовой, а также в том месте, которое не предназначено для растительных насаждений;
Вариант планировки бытовки с удобствами
Как только завершены все подготовительные мероприятия, можно приступать к основным работам. Этапы строительства стационарной конструкции каркасного типа из дерева:
- Подготовка основания. Это возведение фундамента, чтобы постройка была устойчивой и надежной. Для начала снимается плодородный слой с почвы по намеченному периметру, выкапывается яма 40 на 40, наполняется песком вместе с гравием, которые хорошо утрамбовываются. После чего внутрь нужно налить воды и оставить котлован на 7 дней для усадки. По истечении одной недели необходимо зарыть блоки из бетона и соблюсти при этом интервал в 1,5 метра, после чего уложить сверху слой гидроизоляции. А в конце производится укладка рубероида и бруса – фундамент готов;
- Конструирование каркаса. По предварительно нарисованным схемам и чертежам из обрезной доски собирается скелет постройки, при этом лучше использовать брусья, сечение которых 100 на 100 мм и 100 на 150 мм. Происходит сборка торцевых стен, в первую и последнюю очередь осуществляется установка угловых стоек – она производится узкой частью к торцу. Все элементы должны находится друг от друга на дистанции от 0,6 до 0,8 метров. При помощи уголков осуществляется фиксация вертикальных стоек к ростверку (верхняя часть фундамента). Чтобы усилить скелет, используется пергамин и обшивка вагонкой. Крепеж подкосов к раме производится при помощи болтов. Затем готовится лицевой каркас, для которого уже установлены стойки в углах. Количество стоек и расстояние между ними будет зависеть от расположения окон и дверей. В последнюю очередь происходит возведение заднего фасада хозблока;
- Обвязка. Ее укладка происходит на высота от 2 метров от верхней части фундаментной конструкции (ростверк). Стропила собираются на земле, а затем фиксируются на каркасные стойки. В конце на пол выстилается специальная доска. Внешняя обшивка производится с применением гипсокартона, вагонки или OSB-плиты для наружных работ. На крыше закрепляются карнизы, а свесы подшиваются при помощи обрезной доски толщиной в 30 мм. Кровельный пирог должен состоять из утеплителя, пароизоляции, гидроизоляции, обрешетки и финишного покрытия (кровлей может служить рубероид или листы шифера, все элементы крепятся при помощи саморезов);
- Внутренняя отделка. При желании можно утеплить стены и пол внутри помещения, установить перегородки или стены между смежными комнатами и отсеками. Если планируется хранение инструментов, можно предусмотреть полочки, держатели или крючки. Поверхности можно покрасить в любой цвет алкидными пигментами (красками), покрыть лаком, штукатуркой, тонирующей пропиской или обоями. Пол можно выложить плиткой, постелить линолеум, ламинат, ковролин и т. д.
Финишным этапом будет дополнительная отделка внешних стен, декор и украшение зоны вокруг блока. Домик можно покрыть специальной краской, украсить прилегающую территорию клумбами, цветниками, садовой мебелью, аксессуарами и даже возвести искусственный водоем. На фото-подборке можно посмотреть варианты декора и оформления построек.
На видео ниже можно ознакомиться с пошаговой инструкцией создания бытовки из древесины у себя на участке.





































